Szukasz inspiracji na proste i wygodne wykończenie wnętrz?
A może czeka Cię duża inwestycja i zależy Ci na skróceniu czasu pracy ekipy wykończeniowej? Gotowe elementy z płyty kartonowo-gipsowej FlexGips czekają właśnie na Ciebie! Wybierając nowoczesny profil U, możesz na dobre zapomnieć o żmudnej obróbce płyt gk, a także wtapianiu i szpachlowaniu metalowych narożników. Od teraz wykończenie wnętrz zajmie Ci 3 razy mniej czasu, a ostateczny wygląd pomieszczenia zaskoczy Cię niezwykłą precyzją wykonania.
Dlaczego warto zastosować system FlexGips?
Przyjrzyj się dokładnie obu rysunkom i zobacz, ile materiałów jest Ci potrzebnych w obu tych przypadkach. Jak sam widzisz, wykorzystując system FlexGips, ograniczasz ilość niezbędnych elementów konstrukcyjnych, a co za tym idzie – zmniejsza się czas, który potrzebujesz na wykonanie prac.
Co zyskujesz dzięki naszemu rozwiązaniu FlexGips?
- Nie musisz już kupować metalowych narożników.
- Znacząco ograniczasz ilość nośników zewnętrznych.
- Zmniejszasz zużycie mas szpachlowych.
Nasz profil w Twoich pomieszczeniach mokrych
Szukasz sposobu na zabudowę rur w kuchni lub łazience?
Nasz profil U świetnie sprawdzi się w każdym pomieszczeniu mokrym - w kuchni, łazience, pralni lub garażu. Dzięki zastosowaniu specjalnej płyty zielonej Twoja zabudowa będzie w pełni zabezpieczona przed wilgocią, a Ty nie będziesz musiał martwić się o zawilgocenie, czy też zagrzybienie ścian lub sufitu.
To jeszcze nie wszystko! Zobacz, dlaczego powinieneś wybrać profil U FlexGips?
Oszczędność czasu
Jeśli dobrze przyjrzysz się naszemu filmikowi, sam zauważysz, że czas montażu naszych gotowych elementów FlexGips jest 3 razy krótszy w porównaniu do tradycyjnych rozwiązań.
Porównywalne koszty
Porównaliśmy dla Ciebie zużycie materiałowe w przypadku obu systemów. Im mniejszą ilość elementów konstrukcyjnych i materiałowych wykorzystasz, tym mniej za nie zapłacisz.
Spłaszczone krawędzie
Nasze profile gipsowo-kartonowe mają spłaszczone powierzchnie na krawędziach, dzięki czemu podczas łączenia płyt nie powstają dodatkowe zgrubienia.
Solidny element
Nasza propozycja wykończenia wnętrz spotyka się z ogromnym uznaniem każdego, kto stawia na solidność i wytrzymałość w remontowanym wnętrzu.
Najwyższa jakość wykonania
Brak konieczności szpachlowania i wtapiania metalowych narożników sprawia, że nie trzeba już nakładać dodatkowych warstw gipsu, przez co powierzchnia jest idealnie gładka.
Łatwy montaż
Nasze formatki są niezwykle proste w montażu, dlatego do pracy nie będziesz musiał zatrudniać ekipy remontowej. Ze wszystkim poradzisz sobie sam!
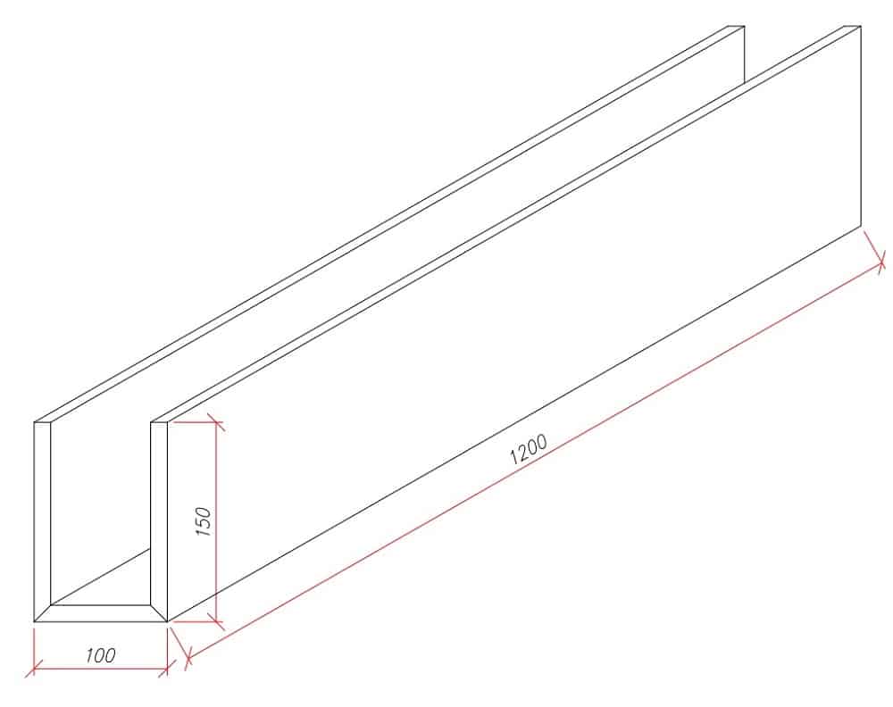
Gdzie możesz wykorzystać profil U 150?
- jako obudowę lampy lub zabudowę rur,
- jako obudowę słupa, tworząc tym samym elegancką kolumnę,
- jako zabudowę przewodów i instalacji elektrycznych,
- w zakończeniach ścian wiszących (kurtynowych),
- we wnękach oświetleniowych,
- jako zakończenie ścianki działowej lub wiszącej kurtynowej,
- w wersji kratownicy wolnowiszącej na suficie.
Dla kogo przeznaczone są nasze produkty FlexGips?
- Dla właścicieli mieszkań, apartamentów lub domów jednorodzinnych, którzy stawiają na innowacje w wykończeniu wnętrz.
- Dla właścicieli lokali użytkowych lub komercyjnych – galerii handlowych, pasaży handlowych, sklepów, biur, lokali gastronomicznych, sal weselnych lub hoteli.
- Dla miłośników szybkich i wygodnych sposobów na tanie wykończenie wnętrz.
Jak wygląda proces zamówienia?







Opinie
Na razie nie ma opinii o produkcie.